Immeuble de rapport

SAINT-GILLES

Offre à partir de 900.000 €

6 Chambres

2 Salles de bain

600 m²

150 m²

Ref 15656

Adresse précise sur demande

Description

Opportunité promoteur : immeuble à réaménager près de la Gare du Midi

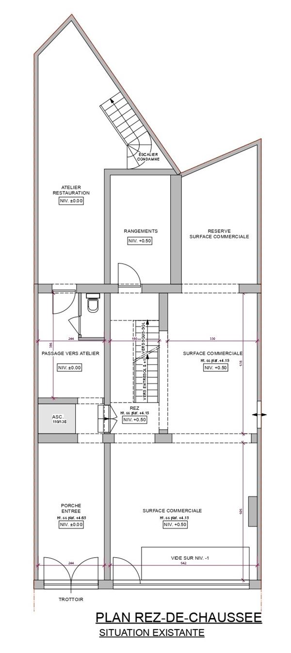
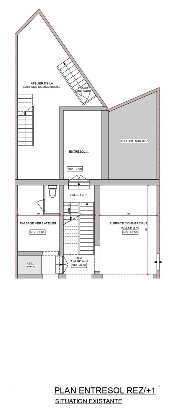
Property One vous propose une spacieuse maison unifamiliale avec commerce au rez-de-chaussée, idéalement située à quelques pas de la Gare du Midi. Le bien comprend un rez-de-chaussée commercial réparti sur deux niveaux et s'étendant jusqu'au bâtiment voisin (celui de droite lorsqu'on fait face à la façade).

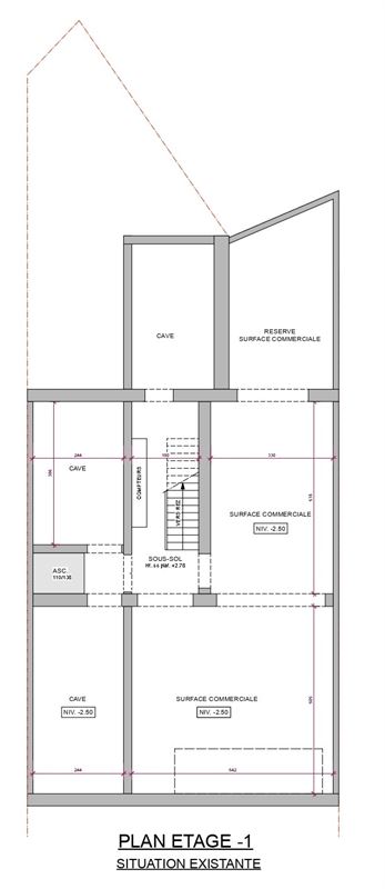
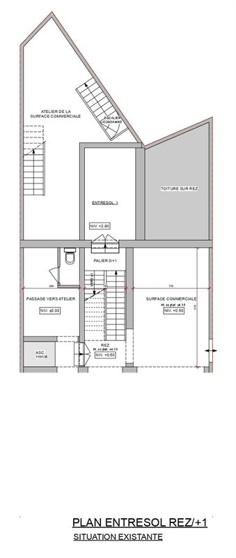
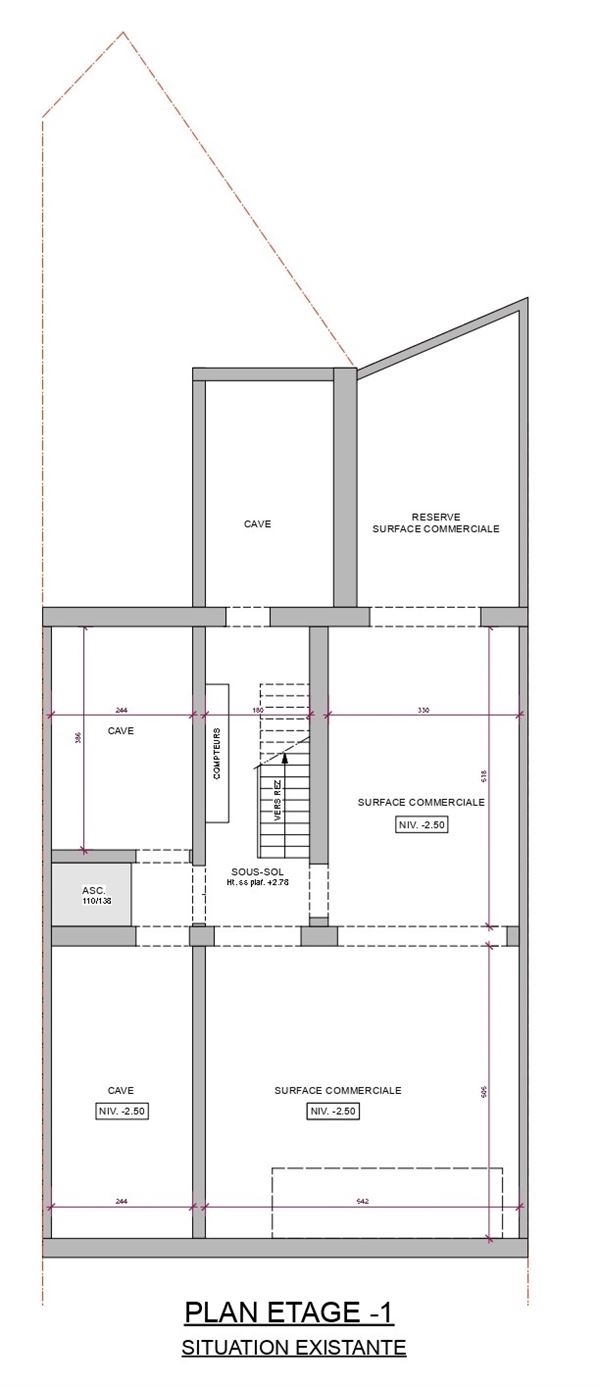
Le premier étage se compose d'un plateau de ±90 m² ainsi que d'un entre-sol de ±35 m². Les deuxième, troisième, quatrième et cinquième étages offrent chacun un plateau de ±90 m². Les combles accueillent quant à eux un espace supplémentaire de ±50 m². Le bâtiment est entièrement sous-cavé.

Ce bien présente de nombreuses possibilités d'aménagement et constitue une opportunité rare pour un entrepreneur ou un promoteur à la recherche d'un projet de développement, notamment en vue de la création d'un immeuble à appartements dans un quartier prisé, à proximité immédiate de toutes les commodités et de la Gare du Midi.

Faire offre à partir de 900.000€.

Superficies données à titre indicatif, les informations reprises dans l'annonce sont non contractuelles.





Détails

Général

Type de bienImmeuble de rapport

ConditionA rénover

DisponibilitéA l'acte

Année de construction1865

Aspects financiers

Revenu cadastral4548

Intérieur

Nbre d'étages5

Ascenseur1

Châssisbois

VitragePartiellement double, partiellement simple

ChauffageC.C. au mazout - Individuel

ÉlectricitéPas encore demandé(e)

CuisineArmoires seulement

Chambres6

Salles de bain2

Cave1

Extérieur

Terrain & environs

Environnement (type)central

Terrain (taille)150 m²

Surface habitable600 m²

PEB

Code unique20250909-0000726618-01-7

Énergie spécifique (kWh / m² / an)489

Émission CO² (kg CO² / m² / an)122

PEB (Classe)G

Contact

Vous êtes intéressé par ce bien ?
Vous désirez plus d’informations ?

Property One Opportunité promoteur : immeuble à réaménager près de la Gare du Midi

Et si on discutait de votre projet immobilier ?

Nous serions ravis de vous aider.

Stay in touch

Recevez toutes nos opportunités par email

RechercheRecherche

Recherche

Vous recherchez

Budget

Choisissez le type de propriété

Type de bien

Dans quelle(s) commune(s) recherchez-vous une propriété?

Critères

Critères

Informations de contact

Contactez nousContact

Contactez-nous / Propriété
Cases à cocher